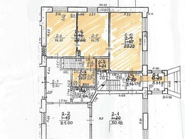
Nuomojamos patalpos Jūros g. 3, Tauragėje, 60.00 kv.m ploto
New
Hot
Sold
Rented
Reserved
Печатать
Rent: 380 € / month
Add to wishlist
×
×
| Area | Floor | Rooms | Heating |
|---|---|---|---|
| 60.0 m2 | 1/1 | 3 | Central |
| Area | 60.0 m2 | ||
| Floor | 1/1 | ||
| Rooms | 3 | ||
| Heating | Central | ||
| Adresas | Jūros g., Tauragės r. sav., Tauragės m. | ||
| Status | Active | ||
| Type | Commercial | ||
| Paskirtis | |||
| Build year | 1930 | ||
| Installation level | Full equipment | ||
| Sale or rent | Rent | ||
| Features | Electricity, Furniture, Good access, Street entrance, Water | ||
Description
Object agent
Additional services
Related searches
